Rivian is hopefully going to be starting deliveries of the R1T and R1S in Canada within the next few weeks. As part of their expansion into Canada, the automaker announced last month it is working on building out their service infrastructure in several provinces across the country.
One of those provinces was Alberta, and we now know the first Rivian Service Center in Alberta will be located in southeast Calgary.
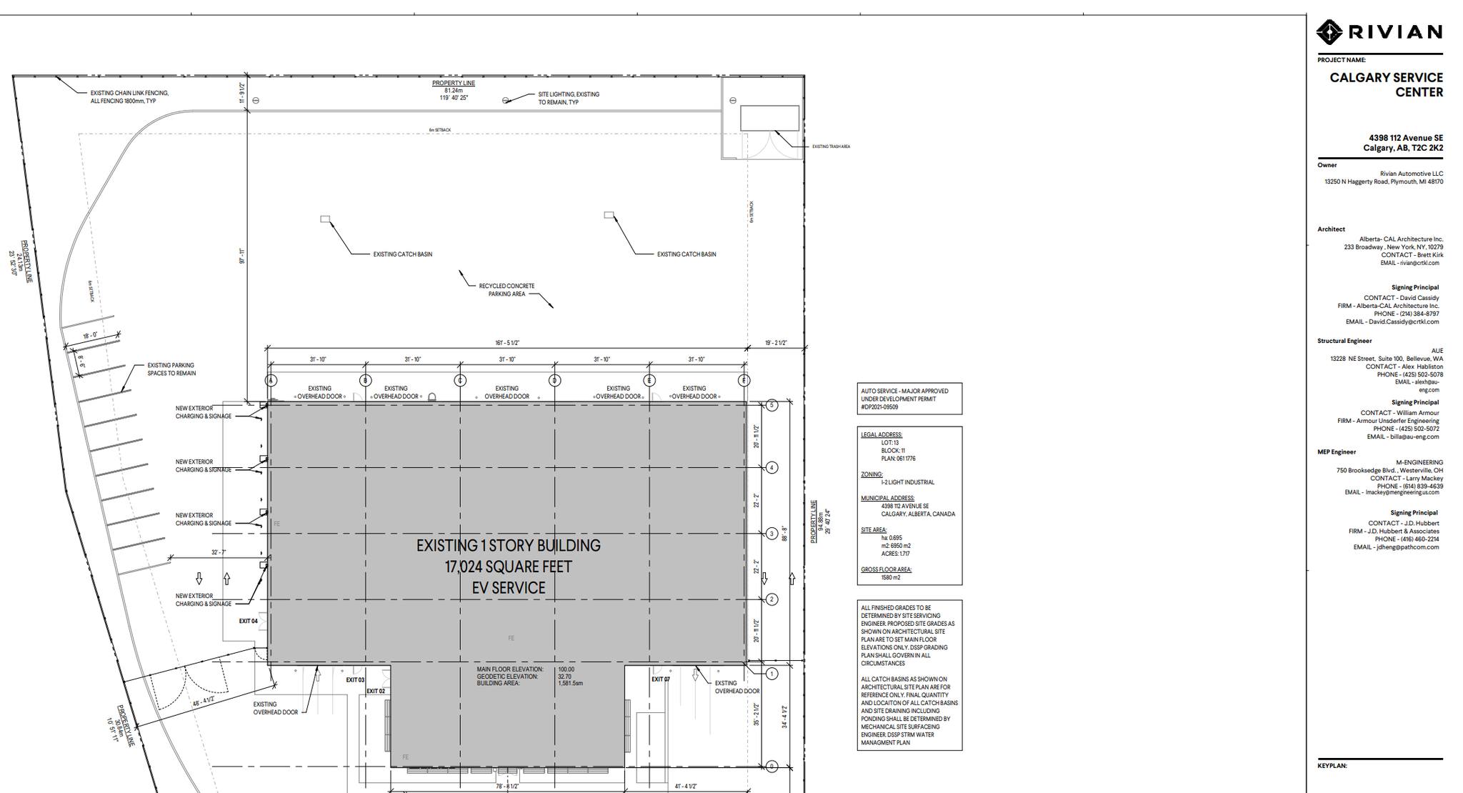
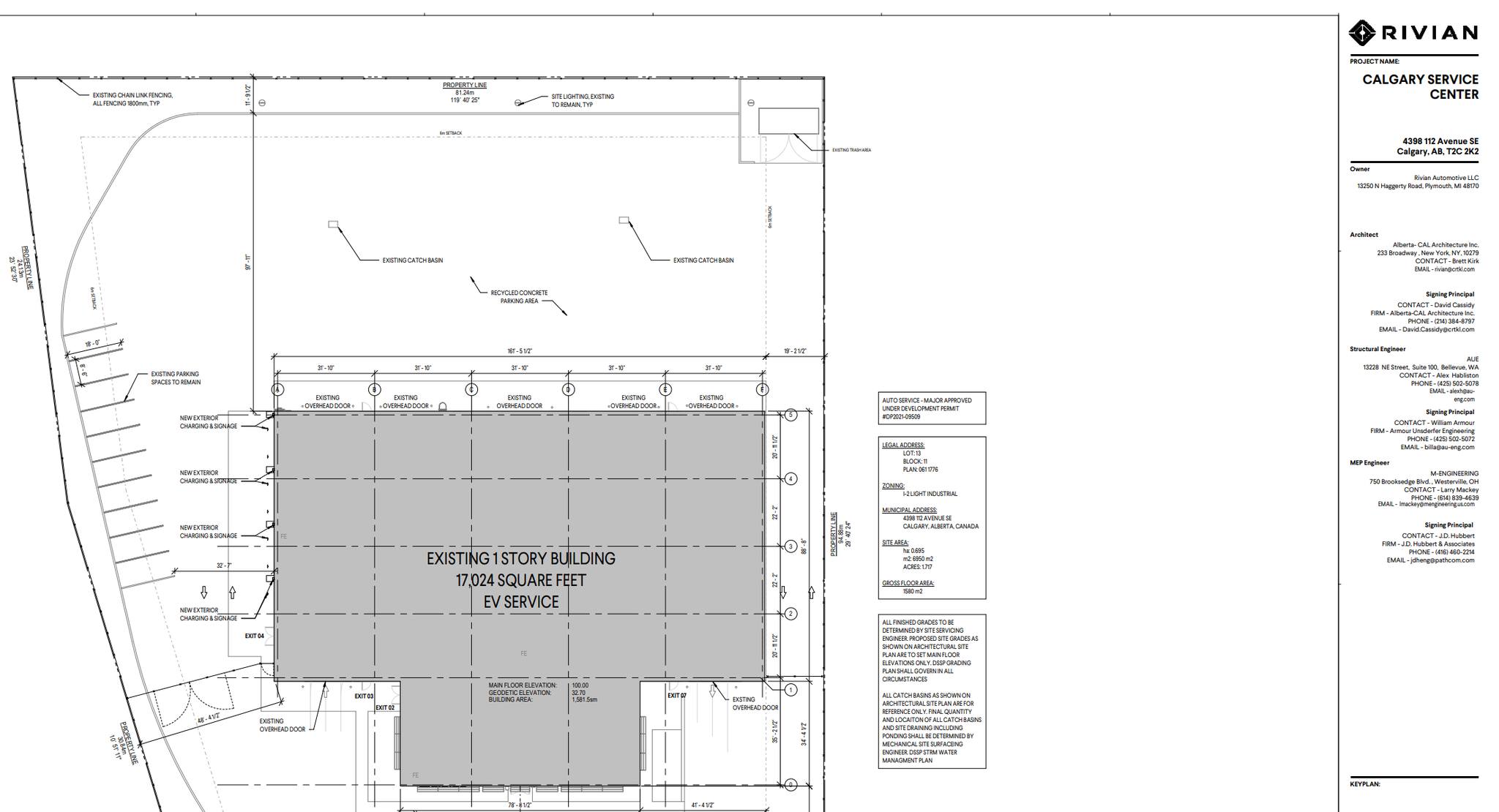
According to plans submitted to the City of Calgary, Rivian’s Alberta Service Center will be located in the Eastlake Industrial Park at 4398 112 Ave SE, about 20 minutes south of downtown Calgary.
The building was previously occupied by Hertz Equipment Rentals.
The plans show Rivian will be moving into a 17,024 square foot building, which sits on just over 1 acre of land.
The site features around 3,600 square feet of office space at the front and five large overhead doors for easy access to the over 13,000 square foot service area at the rear of the building.
A recent lease listing indicates the building also has two drive-through service bays with another two overhead doors at the front of the building.
Rivian also plans to install at least four EV charging stations on the west side of the building, although the plans do not specify whether these will be Level 2 or Rivian’s own DC fast chargers that will form part of the Rivian Adventure Network.
According to building permit information on the City of Calgary website, Rivian applied to renovate the building in April. The automaker gave a permit value of $1,410,000 for the proposed work.
If any of our readers are in the area and can check out the building, please send us some photos to tips@driveteslacanada.ca or tag us on Twitter (@driveteslaca).
Rivian confirms it has completed repairs on most recalled vehicles



