Tesla’s long-awaited Hollywood Supercharger with a diner and drive-in movie theater is one step closer to reality.
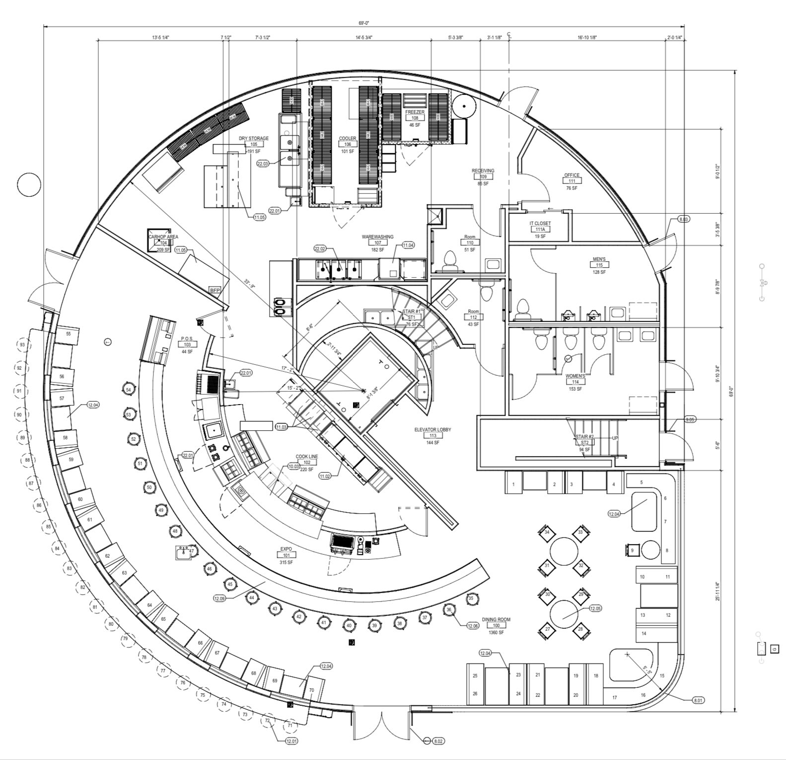
The company has filed plans with the City of Los Angeles to construct a 28 stall Supercharger and restaurant building at 7001 Santa Monica Boulevard in West Hollywood.
According to the plans, which were filed with the city on May 19, 2022 the diner will cover two floors and have enough space for 218 seats. Of those 218 seats, 93 will be on the first floor with 70 seats inside the diner and another 23 outside. (h/t: @benh57 via @MarcoRPTesla)
The second floor will be mostly outdoor seating (113), with another 12 seats inside the building at a snackbar. The second floor will also hold a 77-seat theater sitting area.
Those 77 seats will have a rooftop view of two massive 45′ tall LED movie screens in the north and west ends of the parking lot. Tesla owners can also catch movies while plugged in to one of the 28 V3 Superchargers planned for the site.
It looks like owners will also be able to order food and have it delivered to their car as there will also be a carhop area.
According the plans, the diner will be open 24 hours and the movies will run between 7:00am and 11:00pm.
Although it is not mentioned in the plans, based on the most recent comments from Elon Musk you will be able to pay for your food at the diner with Dogecoin.
And, of course, you can pay in Ðoge
— Elon Musk (@elonmusk) February 19, 2022
Despite being on Santa Monica Blvd, this location will be about 13 miles away from the 62-stall Santa Monica Supercharger at 1421 Santa Monica Blvd. The first 26 stalls at that station opened earlier this year, and the 36 stalls in the second phase should be completed later this summer.

